Knjiženje osnovnih sredstava 
Amortizacione grupe - definisanje konta ispravke
Da definišete konta i konta ispravke otvorite prozor "Amortizacione grupe" izborom opcije glavnog menija Osnovni podaci –> Amortizacione grupe. U kolonu "Konto" unesite analitički konto svake od unetih amorizacionih grupa. U kolonu "Konto ispravke" unesite konta ispravke za svaku od unetih amortizacionih grupa.
Calculus pravilo
Konta definisana na amortizacionim grupama imaju prioritet prilikom knjiženje amortizacije i ispravke u finansijsko knjigovodstvo tako da program prvo proverava postoji li unet konto na amortizacionoj grupi, pa ako ga nema onda uzima konto unet na knjižnoj stavci.
Vrste dokumenata - kontna šema obračuna amortizacije
Otvorite prozor "Vrste dokumenata" iz glavnog menija Osnovni podaci -> Vrste dokumenata i za tip dokumenta "Obračun amortizacije osnovnih sredstava" i otvorite listić "Kontiranje". Kliknite na listić "Kontiranje". Pokažite kursorom na oblast sekcije za unos valute i naloga glavne knjige pa ubacite novi red. U kolonu "Valuta" unesite vrednost DIN, a u kolonu "Nalog glavne knjige" iz padajuće liste birajte registrator naloga glavne knjige u koji će biti kreiran nalog glavne knjige za knjiženje osnovnih sredstava. OBAVEZNO snimite promenu.
Padajuća lista kolone "Nalog glavne knjige" sadrži stavke sa nazivima registratora naloga Glavne knjige. U izabrani "registrator" biće smešteni svi nalozi za knjiženje nastali knjiženjem naloga amortizacije osnovnih sredstava u finansijsko knjigovodstvo po kontnoj šemi koju ćete kreirati za dokument "Obračun amortizacije osnovnih sredstava" u narednim koracima.
Korisno je znati
Sve stavke koje sadrži padajuća lista kolone "Nalog glavne knjige" kreiraju se u programu Finansijko knjigovodstvo u prozoru "Osnovni podaci -> Vrste dokumenata" za tip dokumenta "Nalog glavne knjige".
Pokažite kursorom miša na kolonu sa nazivom "Knjižna stavka" pa ubacite novi red. Kolona "Knjižna stavka" opisno predstavlja stav za knjiženje dugovne ili potražne strane na koju se prenosi finansijski iznos naloga amortizacije osnovnih sredstava i prilikom knjiženje u nalogu glavne knjige se kreira jedna stavka za konto definisan uz knjižnu stavku. Izaberite knjižnu stavku "Ispravke vrednosti".
Konto ispravke vrednosti za knjižnu stavku "Ispravke vrednosti" automatski se preuzima iz kolone "Konto ispravke" iz prozora "Amortizacione grupe". Polje sa kontom ispravke ne može biti prazno pa je u njega neophodno uneti neku vrednost - konto. Za knjižnu stavku "Ispravke vrednosti" upišite bilo koji konto, npr. 0000. Kolonu duguje/potražuje DPpostavite na potražuje P. Kolonu aktivno/storno +/- postavite na aktivno +.
Klikom na kolonu "Analitike" otvara se padajuća lista iz koje birate jednu od ponuđenih vrednosti. Calculus12 koristi više vrsta analitika kako bi se što bliže odredila i opisala poslovna transakcija. To znači da uz konto unet u kolonu "Konto, možete istovremeno "vezati" naziv organizacione jedinice, radnika koji duži osnovno sredstvo, ...
Korisno je znati
Osnovna sredstva možete knjižiti po raznim analitikama, gde će nastati izdvojeni iznosi za svaku od dodeljenih analitika. Analitike MORATE dodeliti svakom osnovnom sredstvu u listiću "Analitike prozora "Osnova sredstva" - Sredstva –> Osnovna sredstva i na kontu na koji se knjiži osnovno sredstvo u kontnom planu. Kontni plan otvarate iz glavnog menija Osnovni podaci -> Kontni plan i označite obavezne analitike.
Calculus pravilo
Vodite računa da ukoliko stavite obaveznu analitku na jedan konto ispravke, onda sva sredstva koja pripradaju toj amortizacionoj grupi moraju imati unetu tu vrstu analitike inače će se u nalogu glavne knjige pojaviti stavka bez popunjene analitike, pa ćete morati naknadno da je popunite.
Kako se dodaju analitike kontima u kontnom planu možete pročitati u poglavlju Vrsta analitike za konto.
Važno
Analitika je atribut konta. Analitika je dodatak kontu koji kazuje osobinu, pripadnost ili količinu onoga što predstavlja konto. Analitika kao atribut odgovara nam na pitanja: KAKAV? ČIJI? OD ČEGA? KOME? Ukoliko u kolonu "Analitike" postavite vrednost Sve umesto Obavezne, onda će se knjižiti sve analitike dodeljene osnovnom sredstvu u prozoru "Sredstva -> Osnovna sredstva" u listiću "Analitike" bez obzira koje ste sve analitike dodelili kontu u kontnom planu.
Ubacite novi red i za knjižnu stavku birajte "Konto amortizacije" pa u kolonu "Konto" unesite konto amortizacije. Kolonu duguje/potražuje DP postavite na duguje D i kolonu aktivno/storno +/- postavite na aktivno +. U kolonu za unos konta amortizacione grupe Za konto am. grupe unosite konto iz kolone Konto a koji odgovara kontu ispravke u koloni "Konto ispravke" koje ste uneli u tabelu "Amortizacione grupe".
Ukoliko je konto amortizacije 5400 - Troškovi amortizacije analitički razvijen (raščlanjen), tada se svakom analitičkom kontu 5400X u koloni Za konto am. grupe dodaje odgovarajući konto amortizacije iz tabele "Amortizacione grupe".
Kreiranje naloga amortizacije osnovnih sredstava
Da biste obračunali amortizaciju osnovnih sredstava otvorite prozor "Pregledi" izborom opcije iz glavnog menija Sredstva -> Pregledi. Unesite datum obračuna amortizacije osnovnih sredstava u polje "Datum obračuna:" OBAVEZNO na poslednji dan u mesecu i kliknite na dugme "Pregled i odmah zatim na dugme "Obračun". Posle klika na dugme "Obračun" postaje dostupno dugme "Napravi dokument.
Za više detalja kako se postavlja filter obračuna pročitajte poglevlje Postupak obračuna amortizacije.
Korisno je znati
Obračun amortizacije se može raditi i za više meseci, ali je neophodno da datum obračuna amortizacije OBAVEZNO bude poslednji dan u mesecu.
Kliknite na listić za prikaz računovodstvene amortizacije "Računovodstvena amort." pa odmah zatim na dugme "Napravi dokument, odaberite kreatora dokumenta iz padajuće liste "Kreator" i kliknite na dugme "Potvrdi".
Ovim postupkom ste obračunali amortizaciju na poslednji dan u mesecu i kreirali dokument "Obračun amortizacije osnovnih sredstava" koji se nalazi u prozoru Dokumenti -> Otvori -> Nalog amortizacije.
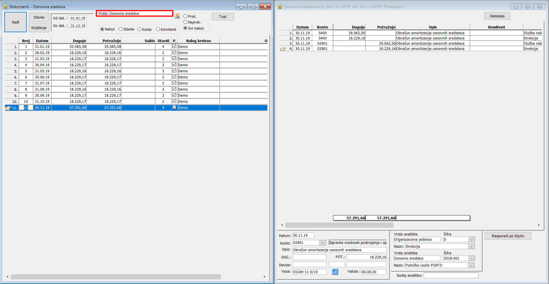
Knjiženje naloga amortizacije osnovnih sredstava
Selektujte nalog amortizacije koji želite da proknjižite u finansijsko knjigovodstvo, i kliknite na dugme "Knjiženje".
Nalog koji je nastao u finansijskom knjigovodstvu izgleda kao na slici ispod:









